top of page

Parikh House

  • Aug 27, 2020
  • 1 min read

Updated: Feb 9, 2025

2019

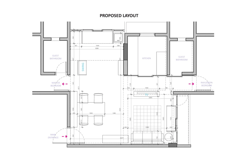
Space planning for the living-dining room of a 2 bhk apartment in Santacruz, Mumbai




 
 

© Metis

bottom of page